Terreno in vendita

Pinerolo, Stradale Risagliardo - Borgo Nuovo - Borgo Madonnina
€ 95.000
725 Mq 725 Mq

Terreno in vendita

Pinerolo, Stradale Risagliardo - Borgo Nuovo - Borgo Madonnina

Descrizione annuncio

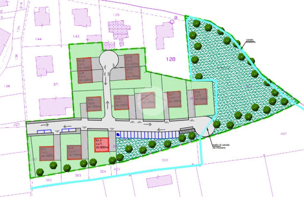
In zona Borgo nuovo, più precisamente in Strada Risagliardo.

Proponiamo in vendita lotto edificabile facente parte di PEC di ville singole e/o ville bifamiliari con una superficie fondiaria di circa 750 mq ed una SLP di circa 200 mq.

La normativa urbanistica odierna permette di realizzare una soluzione su due livelli indicativamente di 9 vani, il Piano Regolatore prevede la possibilità di realizzare il piano interrato. Le opere di urbanizzazione secondarie verranno realizzate successivamente all’acquisto del lotto.

Mostra tutto

Nelle vicinanze

Trasporto pubblico Trasporto pubblico
Stazione di Pinerolo
Stazione di Pinerolo
1,3 Km
Pinerolo (Bin 5 per Torre P.)
Pinerolo (Bin 5 per Torre P.)
1,3 Km
Trasporto pubblico
860 m
Pinerolo (C.so Torino/p.zza Roma)
Pinerolo (C.so Torino/p.zza Roma)
1,1 Km
stazione di Pinerolo Olimpica
stazione di Pinerolo Olimpica
1,8 Km
Ricariche auto elettriche Ricariche auto elettriche
Pinerolo Via Saluzzo | SEMM
650 m
Pinerolo Via Saluzzo | EnelX
690 m
LIDL Pinerolo
1,8 Km
Scuole Scuole
Engim Piemonte - San Leonardo Murialdo
510 m
Scuole
720 m
Scuola Primaria "Giovanni XXIII"
770 m
Scuola Media F. Brignone
900 m
Scuola Primaria "Cesare Battisti"
1,1 Km
Farmacia Farmacia
Farmacia San Donato
920 m
Farmacia San Lazzaro
1,1 Km
Farmacia Colognesi Podio
1,1 Km
Farmacia Marino
1,2 Km
Farmacia Corti - Gosso
1,2 Km
Ospedali Ospedali
Cottolengo
1,9 Km
Supermercati Supermercati
Carrefour Market
620 m
Carrefour Express
1,0 Km
Simply Market
1,1 Km
Oviesse
1,2 Km
Ipercoop Pinerolo
1,3 Km
Negozi Negozi
Negozi
780 m
Ciliegio Fiorito
810 m
Manhattan
1,1 Km
Boaglio Mario
1,2 Km
Beccaria il fornaio del borgo
1,2 Km
Bar Bar
Caffeina
820 m
Espresso Italia
1,1 Km
Caffè del Chiosco
1,1 Km
Bar Wine & Food
1,1 Km
L'Oragiusta
1,1 Km
Ristoranti Ristoranti
I Vitelloni
550 m
Mei Li Yuan
1,1 Km
La Taverna degli Acaja
1,1 Km
Trattoria Zappatori
1,1 Km
Perbacco
1,3 Km
Mostra tutto

Caratteristiche

Rif.:
61068484
Totale piani:
2
Condizionamento:
Assente
Ascensore:
No
Riscaldamento:
Assente
Libero:
Mostra tutto
Prezzo Prezzo
€ 95.000
Rata mutuo Rata mutuo
€ 450 / mese
Spese annue Spese annue
€ 0
Proponi il tuo prezzoProponi il tuo prezzo

Classe Energetica

Questo immobile è esente da classe energetica
Anno di costruzione:
2025
Riscaldamento:
Assente

Ti interessa visionare l'immobile?

Fissa un appuntamento  Fissa un appuntamento

Richiedi informazioni

Clicca su Leggi per aprire l'informativa
* Questi campi sono obbligatori

Calcola il tuo mutuo

Semplice e senza impegno
Anticipo

( % )
Mutuo

( % )

pochi semplici passi

inserisci i tuoi dati
Questionario completato
Grazie per aver richiesto un appuntamento senza impegno con un nostro Consulente del Credito e Assicurativo.

Hai inserito correttamente tutti i dati necessari e a breve riceverai una e-mail con un link da convalidare per inviare i tuoi dati.
Affiliato
Gl Pinerolo Real Estate Sas
Via Virginio, 24 10064 Pinerolo (TO)

Il nostro staff


  • Lorenzo Gatta
    Affiliato

  • Sara Mangiaracina
    Coordinatrice

  • Luca Novelli
    Collaboratore
Via Virginio, 24 10064 Pinerolo (TO)
Zona: Pinerolo Centro - Borgo Nuovo - Ospedale - Tabona
Mostra su mappa
Orari: lunedì - venerdì 09.00 - 13.00 / 15.00 - 19.30; sabato 09.00 - 13.00
Affiliato
Gl Pinerolo Real Estate Sas
Via Virginio, 24 10064 Pinerolo (TO)

2026 Tecnocasa Franchising S.p.A. - P. IVA 08365160152 - Via Monte Bianco 60/A 20089 Rozzano (MI). Ogni agenzia ha un proprio titolare ed è autonoma. Privacy policy | Policy utilizzo | Cookie policy